Santhan Kerlepalli

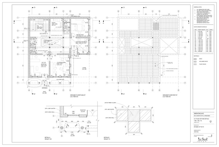
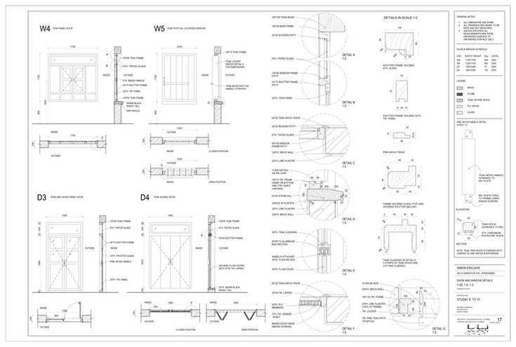
SIMON ENCLAVE
A Bed & Breakfast in Dev Ji Saraiya Pol, Ahmedabad
Rooted in over 600 years of history, the tradition of Pol housing in Ahmedabad has been recognized as a UNESCO World Heritage site, an enduring symbol of community living, architectural ingenuity, and cultural richness. Developing a bed and breakfast within Dev Ji Saraiya Pol offered a unique opportunity to immerse myself in this legacy and reinterpret it through contemporary design.
My design approach was guided by the traditional spatial hierarchy of privacy within Pol houses, where transitions from public to private zones are carefully orchestrated. The project aims to provide an intimate living experience while fostering a sense of openness and connection to the vibrant street life outside.
Elements such as jharokhas, overhangs, and otlas which cast comforting shade and create spaces for interaction along narrow lanes inspired key design decisions. These architectural features not only regulate climate but also nurture informal social encounters. I integrated similar ideas into the bed and breakfast to retain the charm and communal essence of the Pol, allowing guests to experience the unique balance between enclosure and openness.
Early exercises in measuring and documenting aspects of my own home, along with site visits to active construction projects, significantly informed my understanding of material behavior, construction sequencing, and detailing. These experiences were instrumental in shaping both the conceptual and technical development of the project.













